DBM

wonen
wilrijk
2017

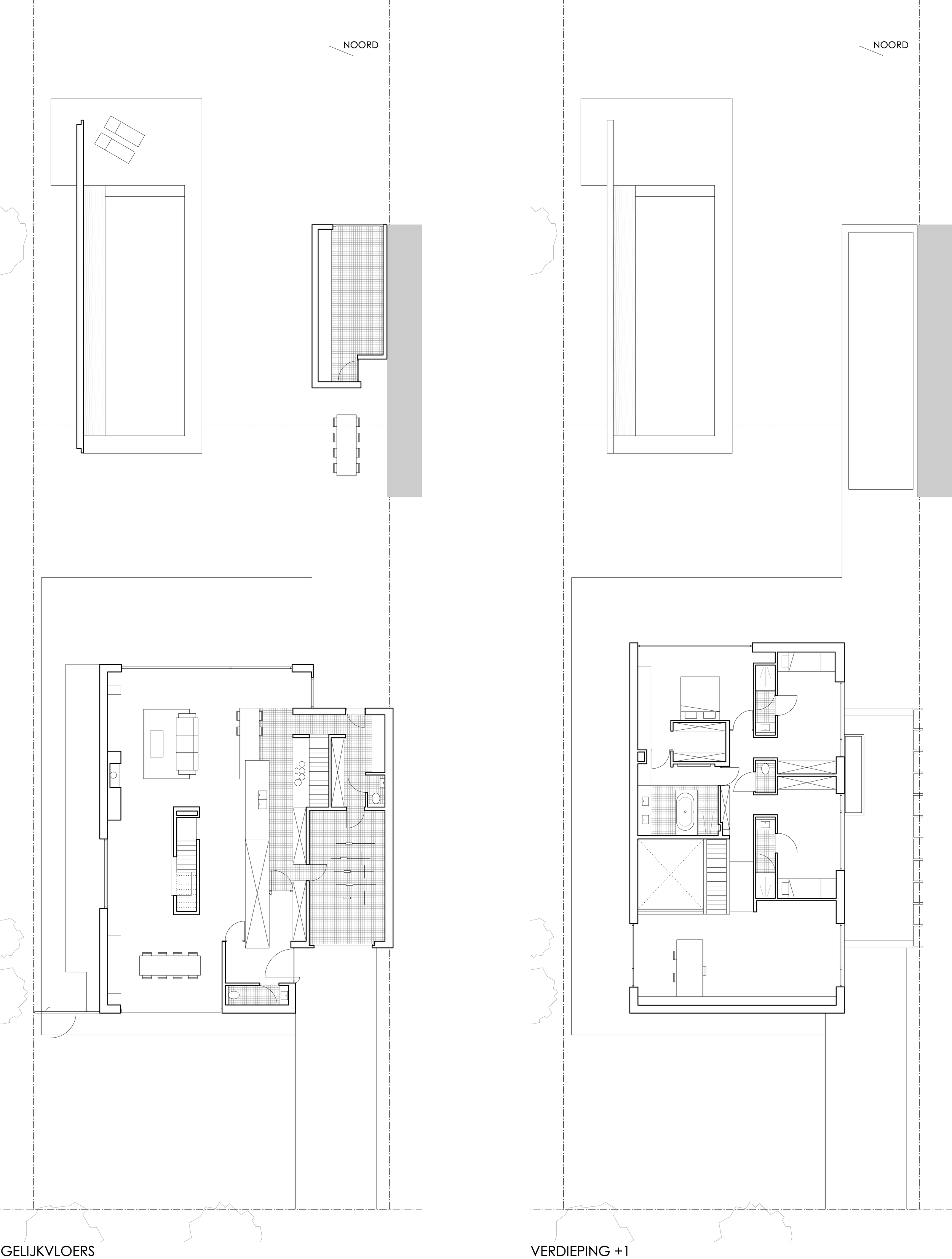
Losstaande nieuwbouwwoning als resultaat van een zoektocht naar een evenwicht tussen voldoende geborgenheid in de woning en contact met de straat, tussen geslotenheid en baden in het licht, tussen een laaggeplaatst raam in contact met de grond en hooggeplaatste ramen in contact met zon en wolken, tussen een volledig glazen wand naar de grote tuin en een gesloten wand in de voorgevel, tussen de textuur van verschillende materialen binnen één kleurpallet, …

Een centraal geplaatste trap in de woning deelt de ruimte op een eenvoudige manier in verschillende zones en verbindt leefruimtes op het gelijkvloers met de bovengelegen bureau/ontspanningsruimte.

Twee atypisch geplaatste dakvolumes laten verschillende licht vanuit verschillende zonnestanden binnendringen in de ontspanningsruimte en de masterbadkamer.